
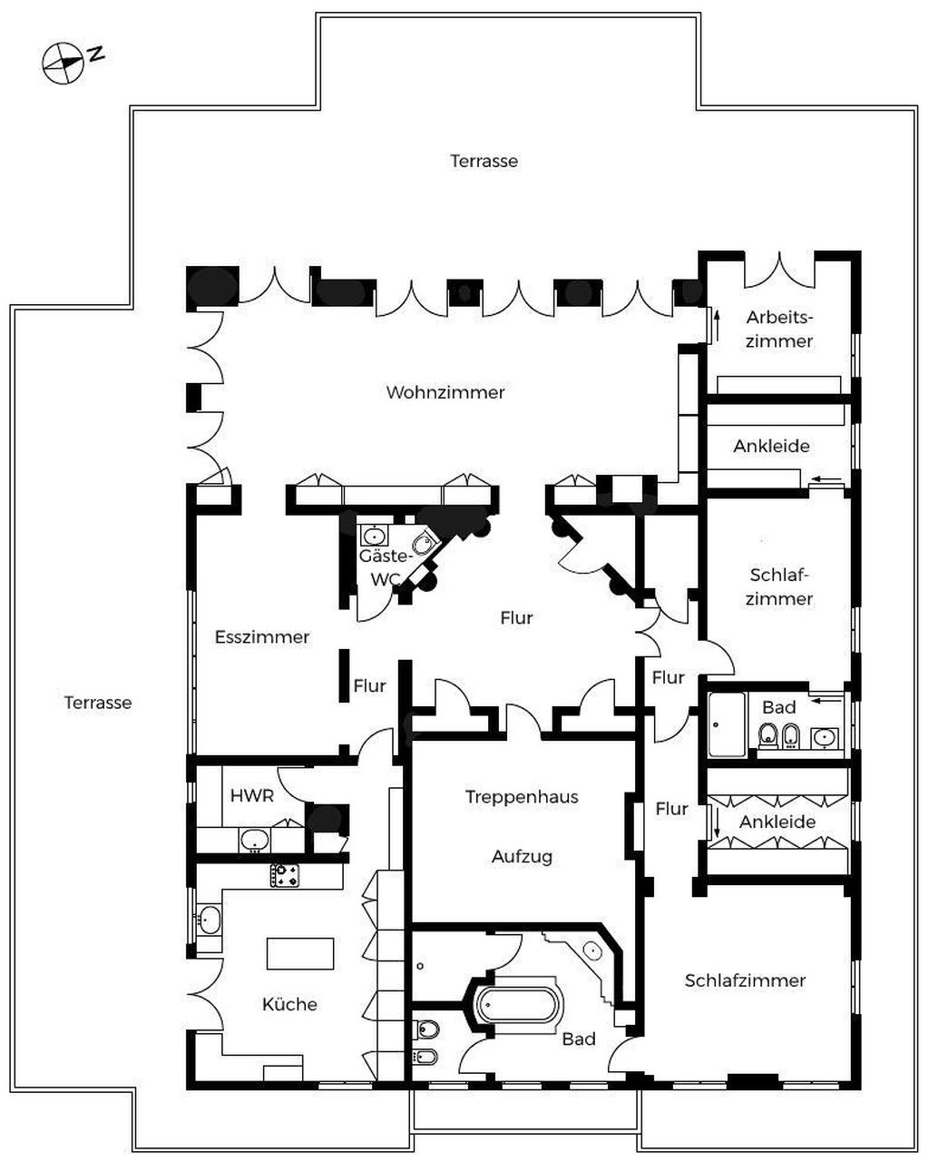
This impressive penthouse offers you the perfect combination of luxurious living and a prime location in the heart of Berlin. With a total of 5 spacious rooms, 3 luxurious bathrooms and 2 dressing rooms, you have enough space to realize your exclusive lifestyle.
The terrace of approximately 150 m² is the highlight of this exceptional property. It offers an unrivaled view of the Tiergarten Park and the Berlin skyline. Here you can relax, receive guests and enjoy life to the fullest.
You will live in the Diplomatic Park, one of the most beautiful places in Berlin, next to the Tiergarten Park. The exclusive residential area offers you privacy and at the same time a central location in the capital.
The magnificent four-storey city villa in the style of classical 19th century architecture impresses with its elegant appearance and exclusive location.
This penthouse is not just a property, but a statement of luxury and sophistication. It offers you the opportunity to live in the heart of the cultural and political capital of Europe, enjoying a lifestyle characterized by elegance and comfort.
The Diplomatic Park Penthouse combines exclusive living with a central yet quiet location. This unique combination makes this property one of the most sought-after in Berlin and offers you the opportunity to experience the best of the capital. Take advantage of this rare opportunity and become part of this exclusive community.
– Stunning 150 sqm terrace. with unrivaled views of the Tiergarten park and the Berlin skyline (only 10% of the terrace area is included in the living area)
— 5 spacious rooms
— 2 luxurious bathrooms and a guest toilet
— High-quality signature built-in kitchen
— Utility room
— Barrier-free entry to the apartment
— Fireplace
— Cooled ceilings
— Alarm
— Elevator directly to the apartment
— 2 underground parking spaces
— Concierge service
— Basement
- Number of rooms – 5
- Area of the apartment – 242 sq.m.
- Year of construction – 2013
- Price – 3,700,000 EUR
- Price of a parking space – 75,000 EUR (150,000 EUR for 2 spaces)
- Commission – 3.57%
Welcome to the heart of Berlin, where exclusive living and a first-class location combine. Diplomatic Park, one of the most sought-after addresses in the capital, offers an unrivaled quality of life and an environment that meets the highest standards. Diplomatic Park is known for its prestigious villas and first-class residential complexes. High-ranking diplomats, entrepreneurs and public figures live here. The quiet, tree-lined streets and manicured green areas create an atmosphere of privacy and exclusivity.
Despite the tranquil setting, Diplomatic Park is right in the middle of the action. The famous Brandenburg Gate, Potsdamer Platz and Tiergarten are just a few minutes’ walk away. This central location allows you to fully enjoy the vibrant life of Berlin.
Some of Berlin’s most important cultural institutions are in the immediate vicinity of the hotel. The Philharmonic, the New National Gallery and the Kulturforum offer a wide range of art and culture. The world-famous Museum Island and the historic city centre are also within easy reach.
The Diplomatic Park is well connected to the public transport network. Bus stops are within walking distance and the main train station is just a few minutes away. For those with a car, the nearby city motorway provides quick connections to all major destinations in and around Berlin.
The elegant Friedrichstrasse, the luxury department store KaDeWe and the Kurfürstendamm with its many boutiques, restaurants and cafés offer a wide range of shopping and fine dining options. Here you will find everything your heart desires and be able to stroll through the best addresses in Berlin.
The extensive Tiergarten, the green lung of Berlin, invites you to take long walks, jogs or picnics. The nearby Landwehr Canal also offers idyllic places to relax and enjoy nature in the city centre.
Take advantage of this rare opportunity to become part of an exclusive community and live at one of the best addresses in Berlin.
Don’t miss the opportunity to purchase a luxurious penthouse in the center of Berlin!
| Price: | €3 700 000 EUR |
| Address: | Clara-Wieck-Straße, Mitte |
| City: | Berlin |
| Year Built: | 2013 |
| Square Meters: | 242.66 |
| Bedrooms: | 5 |
| Bathrooms: | 3 |
| Garage: | Basement |
| Parking: | 2 |
| Rooms: | 5 |
| Utilities: | Utility room |



















